Понедельник: с 09:00 до 18:30
Вторник: с 09:00 до 18:30
Среда: с 09:00 до 18:30
Четверг: с 09:00 до 18:30
Пятница: с 09:00 до 18:30
Суббота: c 10:00 до 17:00 Работает только call-центр
Воскресенье: c 10:00 до 17:00 Работает только call-центр
Склад:
Пн. – Cб.: c 09:00 до 18:00
Вс.: выходной
Принимаем дебетовые и кредитные карты
Более 2500 кв. м
Для физлиц
Указана стоимость на Рольставни для гаража – автоматические 2300 (ш) * 2500 (в) без монтажа и доставки. Запорное устройство выбирается индивидуально. Профиль 58 мм утепленный, пенозаполненный. Короб изделия с усиленными боковыми крышками. Полотно с усиленной нижней планкой.
Возможные цвета: серый, белый, бежевый, коричневый, серебристый, зеленый, антрацит, черный, синий, бордовый. Стоимость может меняться в зависимости от системы управления и комплектации. Подробная консультация по тел.: +7 (495) 152-52-51 или отправить заявку на расчет.
Для снятия замеров для рольставен лучше вызвать нашего специалиста. Профессиональный замерщик не только снимет размеры оконного проема правильно, но и увидит возможные дефекты отделки или самого проема, отметит наличие выступающих и мешающих монтажу элементов. Это исключает или минимизирует риск возможных ошибок.
Рольставни устанавливаются одним из трех способов:
Короб и направляющие могут располагаться как внутри оконного или дверного проема, так и снаружи — на стене. Установка роллет возможна внутри помещения или снаружи, со стороны улицы.

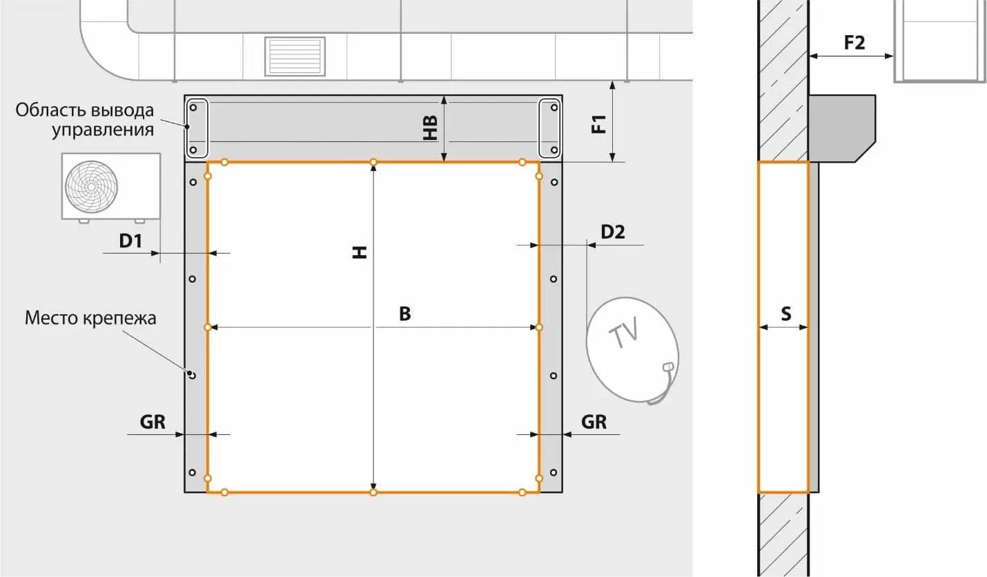
До установки важно подготовить проем или убедиться в том, что у него правильная геометрия, нет дефектов отделки или проходящих рядом с ним коммуникаций, место установки чистое и ровное. Допустимое отклонение от вертикали ±5°. Если внутри стены или на ней проходят провода, трубы, имеются декоративные или функциональные элементы, это нужно отразить на чертеже и учесть в замерах. Если планируется автоматический привод, заранее нужно продумать, где будут установлены элементы управления, как к ним будет подводиться питание.
При проведении замеров нужно осмотреть несущие конструкции и отделку. При установке не допускаются люфты, все элементы должны плотно прилегать к основе. Крепеж подбирают с учетом материалов стен, отделки. Если несущая способность недостаточная для установки роллет, проем дополнительно усиливают металлокаркасом, применяют химический крепеж, используют для крепления анкеры или сквозные шпильки.
Накладной монтаж имеет преимущества:
Минусы накладного монтажа:
Накладной монтаж выбирают, когда нужно закрыть проем нестандартной формы: арочный, ромбовидный, полукруглый, асимметричный. Также этот способ установки подходит для проемов с дефектами периметра или отделки.

Как снимают замеры:
При снятии замеров учитывают отделку, размеры и расположение отливов, возможного декора или функциональных элементов. Их указывают на чертеже, учитывают при монтаже. Предусматривают точки крепления короба роллеты над проемом.
Высота рольставен должна быть больше на размер одной ламели, которая не заходит при поднятии в короб и остается в качестве концевой внутри направляющих для корректной работы системы.

При наружном накладном монтаже элементы управления выводятся через стенку. Для этого измеряют толщину стены и определяют материал, из которого она состоит.

Преимущества встроенного монтажа:
Минусы встроенной установки:
Также нужно понимать, что установленные внутри проема рольставни могут не давать полностью открывать створки.
При внутреннем способе установки крепеж выполняется враспор. Чтобы конструкция не деформировалась и работала корректно, контур должен быть ровным, с допустимым отклонением прилегания от нижней горизонтали 5 мм/м.п.

Снятие замеров производится следующим образом:
При снятии мерок отмечают наличие, расположение, размеры отливов, откосов, декора, прочих элементов. Короб обычно крепится враспор, но иногда приходится закреплять его вертикально, устанавливая крепеж в верхнюю часть крышки по бокам, над направляющими. Точки для такого монтажа также необходимо определить.
Компания «Системы Комфорта» предлагает различные формы оплаты и сотрудничает как с физическими, так и с юридическими лицами. Каждый клиент может выбрать оптимальный вариант.
Наша компания работает по системе единого налога на вмененный доход. Возможны следующие варианты расчета:
Банковской картой — в офисе, замерщику или монтажнику;
Наличными на месте установки или в офисе (допускается патентной системой налогообложения);
Через онлайн-банк или банкомат по выставленному счету;
В кассе любого банка по выставленному счету.
Сканируйте код с помощью телефона, чтобы сразу попасть в личный кабинет мобильного приложения банка.
Не нужно вводить реквизиты для платежа вручную, так как все данные будут уже внесены в платежку. Вам достаточно указать сумму перевода и сообщить менеджеру об оплате через почту office@moskva-jaluzi.ru или на WhatsApp. Для быстрой обработки платежа в сообщении укажите сумму и номер заказа.
Преимущества безналичной оплаты через QR-код:
Мы стремимся предлагать нашим клиентам самый удобный сервис!
Оплата для юридических лиц
Юридические лица осуществляют безналичный расчет. Мы работаем как с НДС, так и без него. В пакет документов входят акт выполненных работ, УПД (универсальный передаточный документ) или счет-фактура и товарная накладная по отдельному запросу, а также договор со спецификацией.
Доплата при курьерской доставке
В случае доставки заказа нашим курьером, без монтажа - доплата принимается наличными.
Компания «Системы Комфорта» предоставляет увеличенную гарантию на жалюзи, рулонные шторы, рольставни и ворота сроком до 5 лет для физических лиц и 1 год для юридических лиц. Выполняется заключение договоров на расширенную гарантию.
Исключение по сроку гарантии распространяется не несколько видов товаров: антимоскитные сетки, автоматика на все виды товаров и ворота секционные, откатные и распашные, на фотопечать и покраску. На данные товары действует гарантия 1 (один) год.
Гарантия начинает действовать с момента установки конструкций нашими специалистами при условии соблюдения правил эксплуатации потребителем. Для решения вопроса необходимо позвонить нам и согласовать время приезда специалиста для оценки. Рассмотрение претензии возможно при предъявлении оригиналов документов на покупку и монтаж конструкций сотрудниками нашей компании.
После обнаружения неисправности следует обращаться с изделиями аккуратно, по возможности не использовать. Пожалуйста, дождитесь специалиста.
Предоставляется официальный гарантийный талон с печатью компании
Диагностика, ремонт бракованных деталей или полная замена (при невозможности провести ремонтные работы) выполняются бесплатно в течение первых 12 месяцев; с 2 по 5 года гарантия действует только на товар, работы оплачиваются согласно действующим тарифам; если были выбраны самовывоз или платная доставка, товар предоставляется в офис для диагностики силами клиента
Если после диагностики будет определено, что случай не является гарантийным, ремонт проводится по желанию заказчика после предварительной оплаты
Заключение по сложной автоматике предоставляется после экспертизы
Максимальное время ожидания выезда специалиста для проверки — 3 дня
Гарантийный ремонт выполняется в срок от 3 до 30 дней с даты обращения
Вернуть товар можно на склад по адресу: г. Москва. ул. 1-й Люберецкий проезд, д.2
Мы всегда решаем вопросы в пользу клиента, чтобы исключить возврат товара.
Согласно статье. 26.1 Закона РФ «О защите прав потребителей» возврат возможен, если сохранены:
По статье 26.1 «Дистанционный способ продажи товара» Закона РФ «О защите прав потребителей». Вы вправе отказаться от товара:
Срок возврата денежных средств, регламентируемый законодательством - не позднее 10 дней с момента получения возвращенного товара. Как правило, деньги возвращаем в день обращения.
В соответствии со ст. 26.1 ФЗ «О защите прав потребителя» Потребитель не вправе отказаться от товара надлежащего качества, имеющего индивидуально-определенные свойства, если указанный товар может быть использован исключительно приобретающим его потребителем.